1A & 1B Poplar Street, Newcomb VIC:
Buy 1 or Buy Both
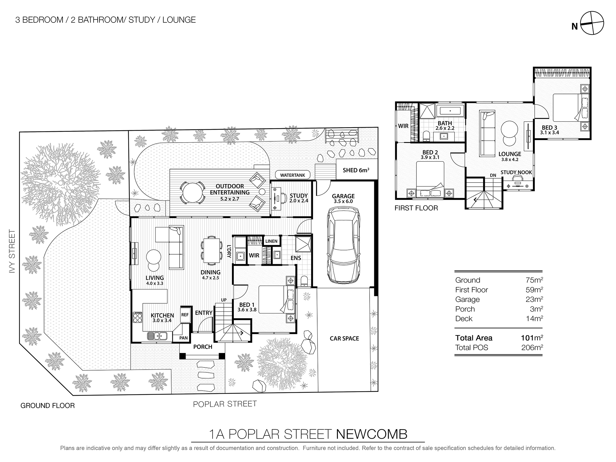
Existing 3 Bedroom House
1A Poplar St, Newcomb, VIC
Price, Plans and Permit available upon request
DA Approved Townhouse Opportunity
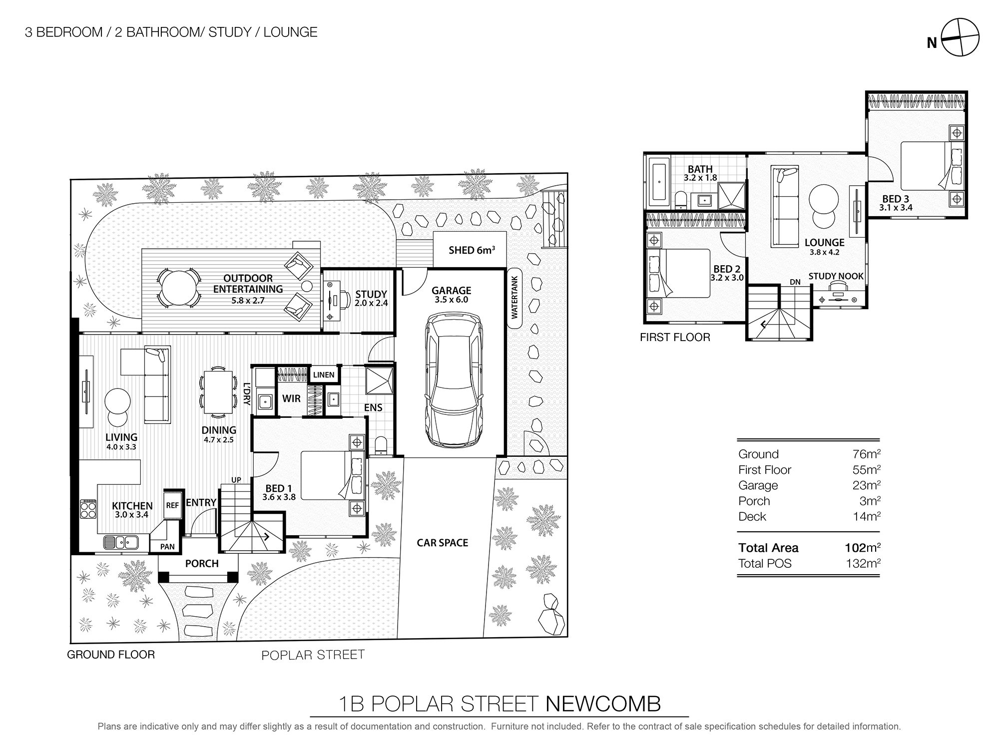
1B Poplar St, Newcomb, VIC
Price, Plans and DA Documentation available upon request
Build this stunning modern home
An exceptional opportunity to secure a parcel of land with approved plans and permit for a stylish 3-bedroom modern townhouse (artist’s impression shown).
Designed with contemporary living in mind, this impressive two-storey residence features a striking façade combining brick, stone and modern cladding, complemented by landscaped gardens and excellent street presence.
This ready-to-build opportunity eliminates the delays and uncertainty of council approvals, making it ideal for builders, investors or home buyers seeking a turnkey development solution.
Positioned in a quiet residential street within the growing suburb of Newcomb, this property offers flexibility, strong future appeal and outstanding value.
Whether you’re looking to develop, invest or build your dream home, this is a rare and highly attractive offering.
Property Overview
- Approved Development Application for a modern 3-bedroom townhouse
- Contemporary two-storey design (artist’s impression)
- Strong street appeal with brick, stone & modern cladding façade
- Private driveway and garage
- Ideal for investors, developers or owner-occupiers
- Quiet residential location in Newcomb
- Plans and documentation available on request













